Om
Kontakt
Sagrén HusKultur
Om
Kontakt

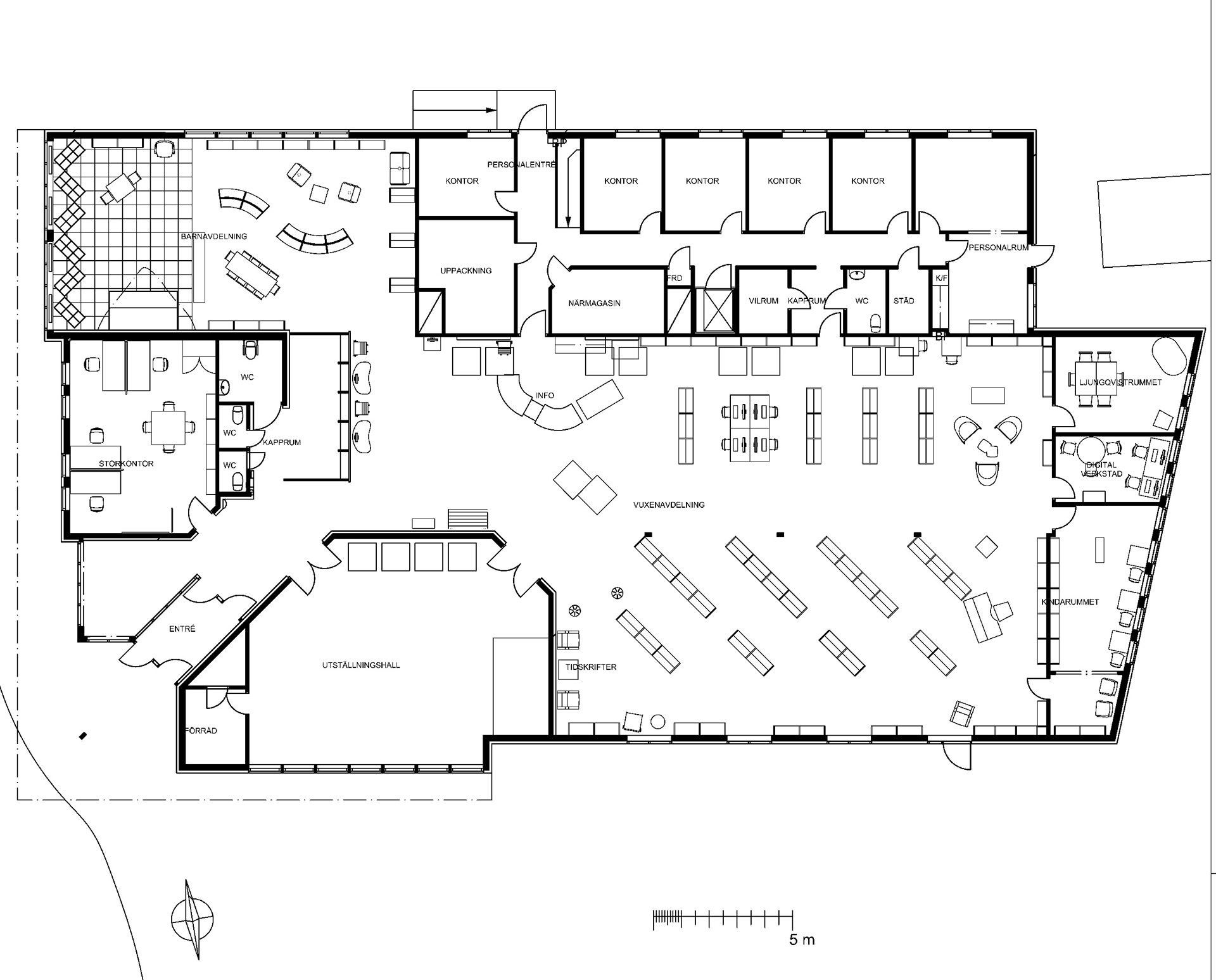
Omorganisation och upprustning av inredningen i huvudbiblioteket, Kinda kommun. Mindre tillägg och förändringar hade ansamlats genom åren och det var dags för ett nytt helhetsgrepp.

Sidan använder cookies. Acceptera Avböj