Om
Kontakt
Sagrén HusKultur
Om
Kontakt

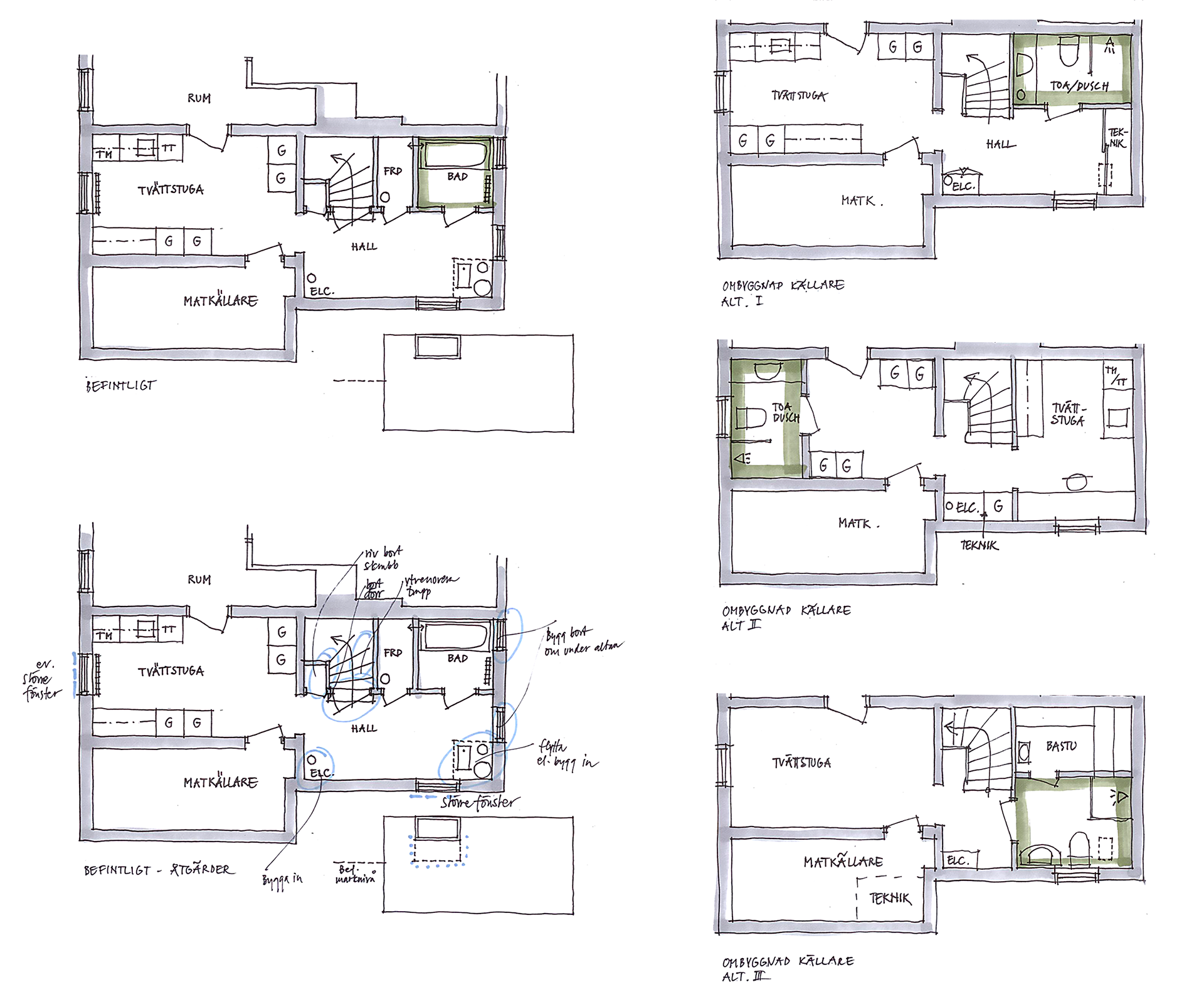
Ett urval från arkivet av privata projekt. Under uppbyggnad!

Sidan använder cookies. Acceptera Avböj